54E4 Rail
The 54E4 rail, manufactured under EN 13674-1 standards, is designed to deliver a balance of strength, durability, and adaptability. With a profile weight of 54.31 kg/m, it offers a slightly optimized geometry compared to other series rails, providing enhanced stability for both passenger and freight operations. This rail type is widely adopted in regional mainlines, metro systems, and industrial sidings, where a consistent combination of strength and cost-efficiency is required.
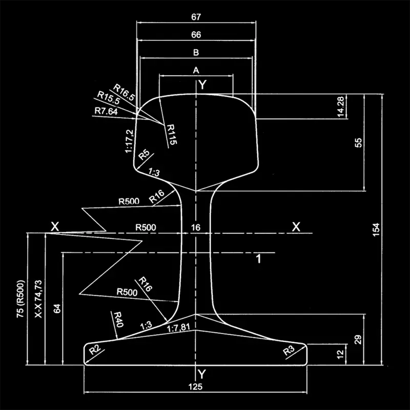
Specifications of 54E4 Rail
| Height: 154 mm | Base Width: 125 mm |
| Head Width:67 mm | Web Thickness: 16 mm |
| Length: 6m-24m | Material: R200/R260/R260Mn/R350HT |
| Weight: 54.31 kg/m | Standard: EN13674-1 |
Need specific length or steel grade for your track system? Contact us for tailored production options.
54E4 Rail Steel Grade & Material
54E4 rail is manufactured in grades R200, R260, R260Mn, and R350HT. Each material grade offers distinct performance benefits:
R200: economical choice for low-traffic tracks
R260: widely used for mixed passenger and freight traffic
R260Mn: better wear resistance for busier lines and curves
R350HT: high toughness for demanding applications, including high-speed sections
Applications of 54E4 Rail
Industrial Heavy Tracks
The 54E4 rail is widely used in steel mills, ports, and power plants where heavy machinery and bulk cargo trains operate daily. Its strong profile provides stability for continuous movements and resists wear under intense loading cycles.
Mining Transport Routes
On mining haul lines, where ore and raw materials are carried over long distances, this railway rail ensures durability against abrasion and impact. Higher grades like R260Mn or R350HT make it reliable for demanding mine transport systems.
Logistics Distribution
For large warehouses, container yards, and intermodal terminals, this rail track enables smooth cargo handling and efficient vehicle movement. Its consistent performance supports the flow of goods in modern supply chain operations.
Processing Options for 54E4 Rail



Our factory provides custom processing to reduce on-site work and enhance track alignment:
Our Services Include:
- Precision Cutting: straight or angled cuts for faster installation
- L-shaped End Cutting: joints adapted for special layouts
- Hole Drilling: web/base drilling for fishplates and fastening systems
- Protective Coating: oil, paint, or zinc to prevent corrosion
- Bending: hot or cold bending for curves, tunnels, or crane applications
54E4 Rail Export and Container Loading
Glory Track ensures safe export packing for 54E4 rails, using steel strapping, and optional waterproof covers to secure every shipment. Accessories and fasteners are packaged separately in fumigation-free wooden boxes.
With extensive shipping experience to Europe, Africa, Asia, and South America, we guarantee reliable delivery and damage-free arrival for long-distance transport.
54E4 Rail for Sale
At Glory Track, we don’t just supply 54E4 rail, we deliver a complete solution. With more than 10 years of rail track expertise, our team understands the technical demands of heavy-duty applications. Every rail is sourced from certified mills, inspected under strict quality standards, and backed by professional processing services like drilling, cutting, and anti-corrosion treatment to fit your project needs.
What sets us apart is reliability and flexibility. We maintain ready stock for faster delivery, provide tailored export packing for long-distance shipping, and offer full technical support from selection to installation. Choosing Glory Track means gaining a partner who values long-term performance, cost efficiency, and on-time project execution, advantages that make us a trusted rail supplier worldwide.
Contact Us Today
Contact Glory Track today to get competitive 54E4 rail prices, fast delivery, and expert support tailored to your project needs.
